Featured Properties
Latest Project

Discover our latest venture at Alexia Estates, where we are currently developing an exciting new project. This innovative development spans five floors, comprising 28 plots that cater to both residential and commercial needs, ideal for businesses and individuals seeking a modern living space. If this project piques your interest and you envision a future within its dynamic environment, please don’t hesitate to get in touch. We’re just a call away and eager to assist you in taking the next step towards your new business location or home.”

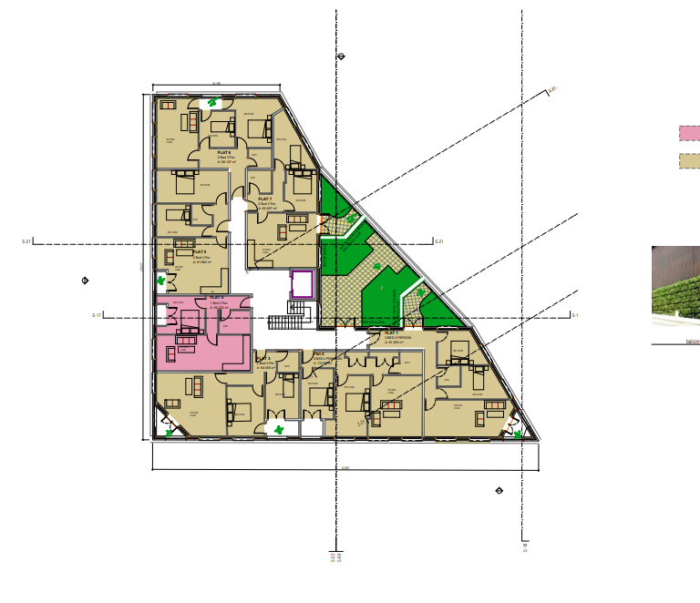
Proposed First Floor Plan

Alexia Estates proudly unveils its latest project, a five-Floor development featuring a meticulously designed plan that hosts seven apartments. Among these, six are two-bedroom residences, while one offers a single-bedroom layout. The apartments vary in size, with the smallest spanning 538 sq feet and the largest extending to 785 sq feet, thoughtfully crafted to meet diverse living requirements. Our construction is priced competitively at £ per square foot, reflecting our commitment to providing value without compromising on quality or comfort.

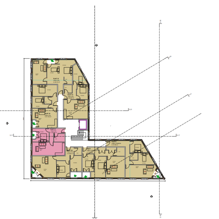
Proposed Second Floor Plan

Explore the exclusive offerings on the second floor of Alexia Estates’ latest five-floor development, where sophistication meets comfort. This floor mirrors the exceptional design of the entire building, featuring seven well-appointed apartments. Six of these are spacious two-bedroom residences, and one is a charming single-bedroom apartment, perfect for a range of lifestyles and preferences. The apartments on this floor vary in size from a 538 sq feet to a generous 785 sq feet, each crafted to maximize space and comfort. With competitive pricing at £ per square foot, the second floor of this development represents an outstanding opportunity to experience premium living or invest in a valuable property, all without compromising on the high standards of quality and comfort that Alexia Estates is known for.

Proposed Third Floor Plan

Explore the exclusive offerings on the third floor of Alexia Estates’ latest five-floor development, where sophistication meets comfort. This floor mirrors the exceptional design of the entire building, featuring eight well-appointed apartments. Three of these are spacious two-bedroom residences, and Five are charming single-bedroom apartment, perfect for a range of lifestyles and preferences. The apartments on this floor vary in size from a 538 sq feet to a generous 785 sq feet, each crafted to maximize space and comfort. With competitive pricing at £ per square foot, the third floor of this development represents an outstanding opportunity to experience premium living or invest in a valuable property, all without compromising on the high standards of quality and comfort that Alexia Estates is known for.

Proposed Forth Floor Plan

Discover the unique allure of the fourth floor in Alexia Estates’ latest five-floor development, where elegance meets modern living. This floor upholds the exceptional design standard of the entire building, showcasing seven beautifully designed apartments. Of these, two are generously proportioned two-bedroom residences, and five are inviting single-bedroom apartments, catering to a variety of needs and preferences. The sizes of these apartments range from a comfortable 538 sq feet to an expansive 785 sq feet, each meticulously designed to optimize space and provide utmost comfort. Priced competitively at £ per square foot, the fourth floor presents a remarkable chance to indulge in luxurious living or to secure a valuable investment in a property that does not compromise on quality or comfort, true to the reputation of Alexia Estates.

Proposed Fifth Floor Plan

Discover the unique allure of the fifth floor in Alexia Estates’ latest five-floor development, where elegance meets modern living. This floor upholds the exceptional design standard of the entire building, showcasing beautifully designed apartments. Of these, Some of them are  generously proportioned two-bedroom residences, and some are inviting single-bedroom apartments, catering to a variety of needs and preferences. The sizes of these apartments range from a comfortable 538 sq feet to an expansive 785 sq feet, each meticulously designed to optimize space and provide utmost comfort. Priced competitively at £ per square foot, the fourth floor presents a remarkable chance to indulge in luxurious living or to secure a valuable investment in a property that does not compromise on quality or comfort, true to the reputation of Alexia Estates.

Our Proposed Draft